Kosovo & Farm 694
PROJECT INFORMATION
Client: Department of Human Settlements Type: Project ongoing
Address: Philippi, Cape Town
Our company was appointed by the Department of Human Settlements in 2017 for the Southern Corridor Informal Settlement upgrading programme. The programme aims to upgrade informal settlements in Cape Town, South Africa, providing subsidized housing for the urban poor as part of the National Government housing delivery programme. Our scope included Architecture and Urban Design to ensure a holistic approach.
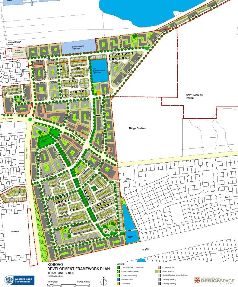
In 2016, the Community Organisation Resource Centre (CORC), an NGO, conducted a thorough analysis of the site conditions and population profile. The study confirmed that the Kosovo informal settlement houses around 15,000 people in 6,000 dwellings. The settlement lacks formal roads and essential infrastructure, presenting significant challenges for the design process. Established in 1999, the settlement covers a 28ha site with a density of 212 dwellings per hectare. Inadequate services were found, with sanitation provision at 1:31 households and water taps at 1:138 households.
One of the main challenges for this informal settlement was providing infrastructure and new dwellings while the community continued to live there. The strategy adopted was to find adjacent land for the decanting of residents into permanent structures. This plan was workshopped and agreed upon with the Kosovo residents. The first opportunity was a 5ha site called ERF 694 in the New Woodlands area, which could accommodate 434 dwellings. The project is still ongoing, with 434 houses completed and 300 dwelling units handed over to beneficiaries.
