ROOFTOP BAR, RADISSON RED
PROJECT INFORMATION
CLIENT: Radisson Red / V&A Waterfront
TYPE: Mobile Structure / Commercial
STATUS: Completed project
PROJECT VALUE: Confidential
COMPLETION: October 2025
ADDRESS: Silo District, V&A Waterfront, Cape Town
PROJECT TEAM: Design Network (Project Lead); Sutherland Engineers; ARUP; Consultmech; TRT Rigging
PRINCIPLE CONTRACTOR: Container Land
“From container to landmark – a custom-fabricated mobile rooftop bar rooted in the industrial language of the Silo District, V&A Waterfront, Cape Town.”
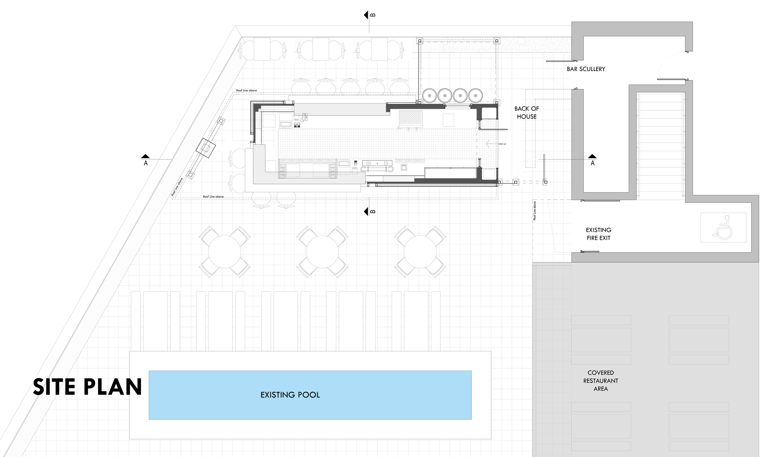
The Rooftop Bar at the Radisson Red Hotel forms part of a comprehensive upgrade and makeover of the hotel facilities, including a refresh of the artwork and public spaces, culminating in the rebranding of the rooftop restaurant and bar as Locâl. Located within Cape Town’s working harbour at the V&A Waterfront Silo District, the intervention replaces the former Van Rouge bar with a more permanent and architecturally integrated mobile structure, geared to support the hotel’s evolving identity and active rooftop events programme.
Set against expansive views of Table Mountain, Signal Hill, the V&A Waterfront and the Zeitz MOCAA, the rooftop is one of the city’s primary sunset destinations. The design responds to this setting by reinforcing the strong diagonal geometries of the existing building and introducing an upgraded rooftop bar facility which aligns with these formal design cues while redefining circulation and occupation across the terrace. The visual dialogue with ZeitzMOCCA and the Silo Hotel presents a unique and enjoyable rooftop experience.
Industrial Chic
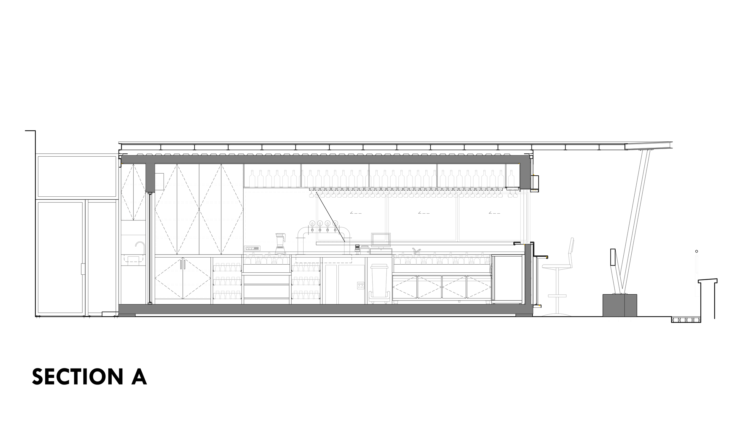
A 12m high-cube shipping container – remodelled to 7m – is transformed into a robust but articulated architectural installation aligned with the clean lines and contemporary language of the hotel. A large diagonal incision removes over half of the long façade and cuts into the corner to create a column-free opening toward the pool terrace and surrounding views. This opening significantly increases the serving frontage while activating a previously underutilised portion of the rooftop. A lightweight roof canopy extends beyond the container envelope, providing a thermal double roof effect, supported by a sculptural Y-shaped steel column that resolves the structural challenge of anchoring against “wind-lift” and maintaining an open corner without vertical support while establishing a defined spatial threshold around the bar. The rooftop can additionally be used for temporary events.
Radisson Red commissioned Nardstar*, an internationally acclaimed South African street artist, to develop bespoke artwork aligned with the hotel’s rebranding, reinforcing its signature identity while contributing to a vibrant atmosphere for events and hospitality offerings on the rooftop.
Hotel Brand
Material selection for the rooftop bar structure reinforces both contextual continuity and the refined repositioning of Locâl. The container typology references the industrial character of the harbour and shipyard environment of the Silo District, as well as the robust material palette of the existing hotel façade. These industrial components are balanced by the introduction of more tactile finishes that elevate the structure beyond its utilitarian origins, introducing a contemporary aesthetic.
To enhance the atmosphere for the many evening events hosted on the rooftop, lighting plays a central role after sunset. Integrated red LED elements, glass shelving, under-counter lighting and a bespoke overhead lightbox create a controlled glow that reinforces the brand language while establishing the bar as a visual anchor on the skyline.
Collaboration
The project was developed and realised through close collaboration with Container Land, the principal contractor, whose fabrication team worked alongside the design team from early concept through to installation. The container was extensively re-engineered and custom cut, with bespoke folded steel components, structural reinforcements and joinery elements fabricated off-site at their workshop. This coordinated design-fabrication process ensured precision in execution while enabling rapid on-site assembly and minimising disruption to hotel operations, requiring efficient coordination and collaboration between the design team and the Radisson Red.
The removal of the existing Van Rouge installation, demolition of its supports, slab preparation and waterproofing, and placement of the prefabricated container and roof were executed within a single crane operation. Owing to the sensitivity of loading over the super-basement levels on which the hotel is built, crane supports were temporarily transferred through two floors using propping and scaffolding by the specialist crane operators.
The result is a highly tailored intervention in which architectural intent and making, including the complex lifting of the structure 30m over existing buildings, were the product of collaboration and precision, transforming a standard shipping container into a permanent and carefully resolved architectural element which sits comfortably in its context, as a destination at the rooftop.
